FORUM     OG£OSZENIA    
 
STRONA G£ÓWNA / OG£OSZENIA GASTRONOMICZNE / KUCHNIA CATERINGOWA / ZAK³AD GASTRONOMICZNY MIñSK MAZ. 600M2
OG£OSZENIA GASTRONOMICZNE
SPRZEDAM (1676)
KUPIÊ (93)
WYNAJMÊ (123)
DO WYNAJÊCIA (78)
ZAMIENIÊ (3)
POZOSTA£E (271)
ZAINWESTUJÊ (5)
SZUKAM INWESTORA (31)
POSZUKUJÊ PRACY (23)
ZATRUDNIÊ (515)
OG£OSZENIA GASTRONOMICZNE WYNAJMÊ DODAJ OG£OSZENIE


DANE KONTAKTOWE
Rafa³ Rygielski
Firma: Gastromagic
Telefon: 501 499 939
Adres e-mail: rafal@gastromagic.pl
Miasto: Miñsk Mazowiecki


DANE U¯YTKOWNIKA
Doda³: RRafal
Ilo¶æ og³oszeñ: 1
Data dodania: 2023-11-13
Czas dodania: 09:50:37
Statystyki og³oszenia: 191
Kuchnia cateringowa / Zak³ad gastronomiczny Miñsk Maz. 600m2

Typ og³oszenia: WYNAJMÊ

Wynajmê dzia³aj±cy zak³ad gastronomiczny / kuchnia cateringowa z wyposa¿eniem lub bez.
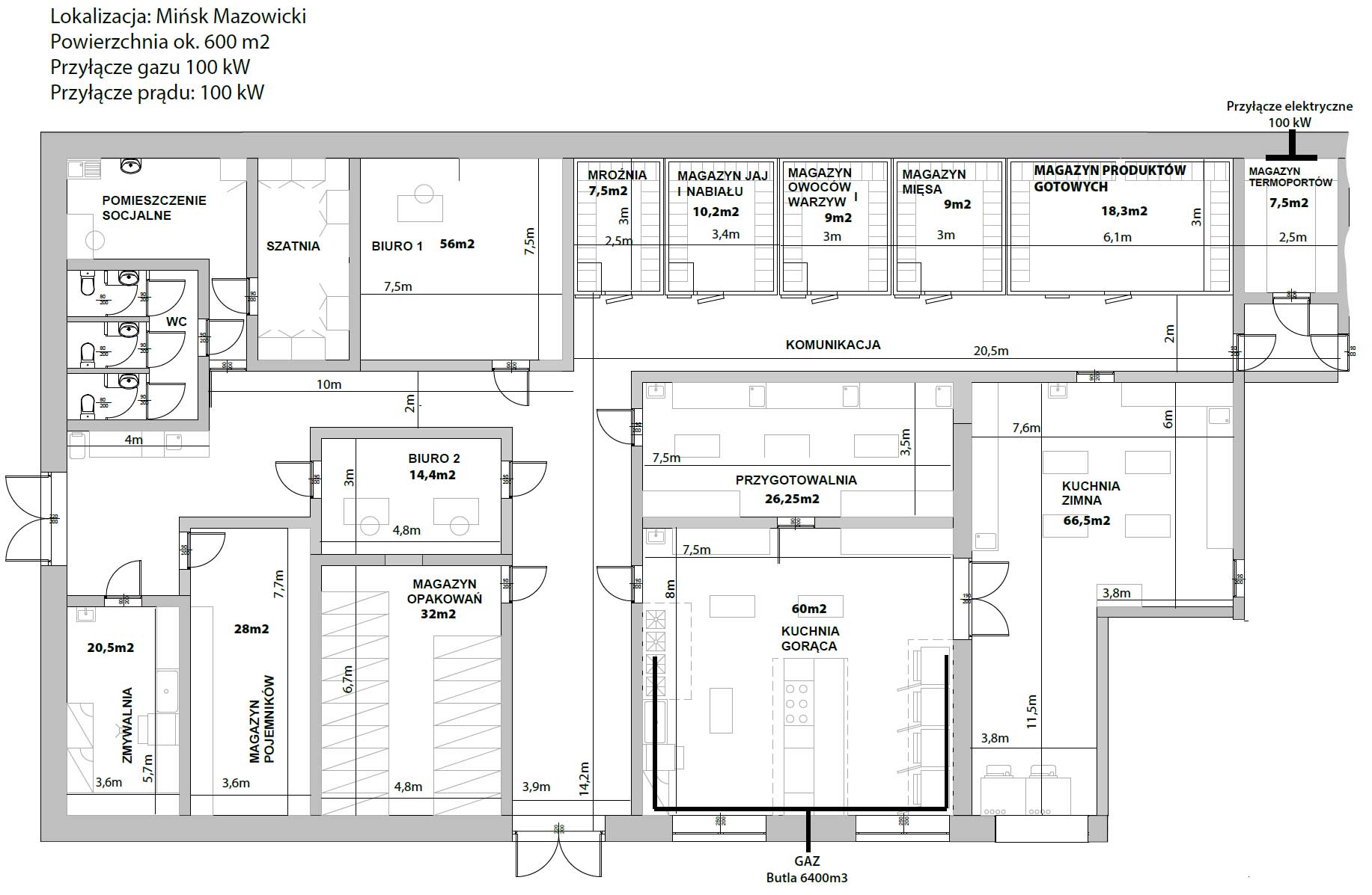
Lokalizacja: Miñsk Mazowiecki
Powierzchnia ca³kowita ok. 600m2

Spis pomieszczeñ:
Przygotowalnia 26m2
Kuchnia gor±ca 60m2
Kuchnia zimna 66,5m2
Biuro1 56m2
Biuro2 14,4m2
Magazyn1 32m2
Magazyn2 28m2
Zmywak 20,5m2
Mro¼nia 7,5m2
Ch³odnia1 10m2
Ch³odnia2 9m2
Ch³odnia3 9m2
Ch³odnia4 18,3m2
plus pomieszczenia socjalne i ci±gi komunikacyjne

5 - 0 - 1 - 4 - 9 - 9 - 9 - 3 - 9

Przy³±cze gazu: 100kW (butla 6400m3)
Przy³±cze pr±du: 100kW
Ciep³a woda - odzysk ciep³a z ch³odni
Wentylacja z rekuperacj±


GALERIA ZDJÊÆ

Kuchnia cateringowa / Zak³ad gastronomiczny Miñsk Maz. 600m2
(kliknij na zdjêcie aby powiêkszyæ)


OG£OSZENIA GASTRONOMICZNE

 
STRONA G£ÓWNA     O NAS     REGULAMIN     REKLAMA     KONTAKT    
Copyrights © ForumGastronomiczne.pl 2008-2016.